FIFTH FLOOR

Apartment

Size

Description

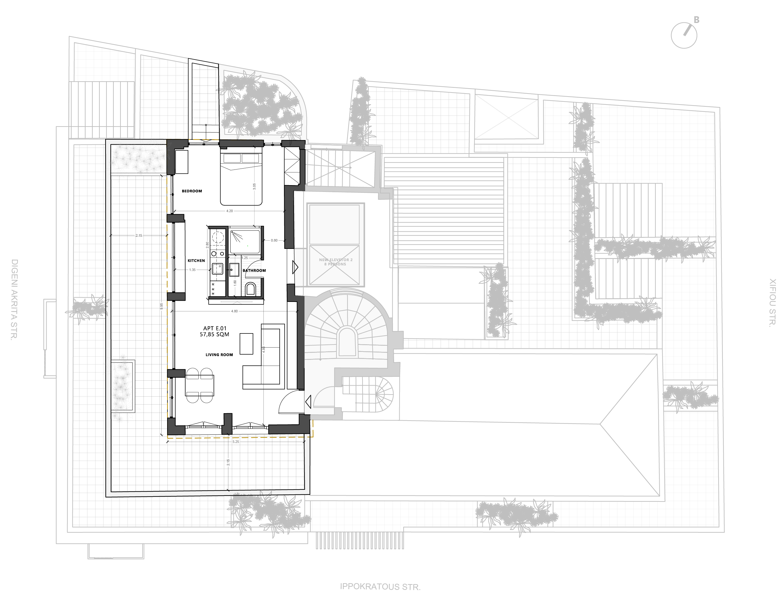
Located on the 5th floor, this 57.85 m² one-bedroom penthouse is currently under construction and offers a bright, modern layout with elevated views. Designed for efficient living, it combines comfort, design and functionality.

RESERVED!

SIDE VIEW FROM IPPOKRATOUS STR.

SIDE VIEW FROM DIGENI AKRITA STR.